OFICINA, en RENTA, Esquina San Luis Tlatilco y Urbina, Parque Industrial Naucalpan, Edo. de México

1 baño
8 garages

Descripción

Se rentan oficinas en planta baja y alta en Parque Industrial Naucalpan (se pueden rentar ambos pisos completos o por separado).

**NO CUENTA CON ACCESO PARA ENTRADA DE CAMIONETAS**

PLANTA BAJA - Renta: $73,200 MN

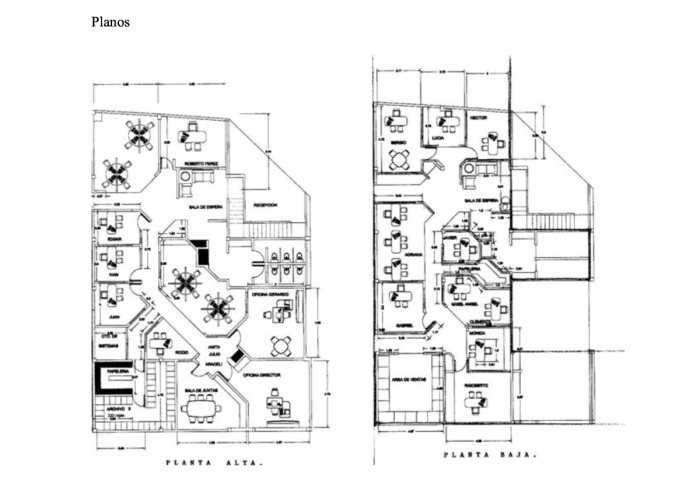
Superficie 260 m2 - planta oficinas

Superficie 29 m2 - estacionamiento techado (2 autos)

Superficie 105 m2 ?? estacionamiento visitas (8-10 autos) y baños hombres: 2 sanitarios, 2 mingitorios, 2 lavamanos

Superficie 394 m2 ?? baños mujeres: 3 sanitarios, 2 lavamanos
baño privado: 1 sanitario, 1 lavamanos

Planta Oficinas:
Estacionamiento techado: 2 autos
Estacionamiento banqueta: 8-10 autos
Banos hombres: 2 sanitarios, 2 mingitorios, 2 lavamanos
Banos mujeres: 3 sanitarios, 2 lavamanos
Banos privado: 1 sanitario, 1 lavamanos

PLANTA ALTA- Renta: $96,700 MN

Superficie 364 m2 ?? planta oficinas

Superficie 35 m2 ?? recepción con baño

Superficie 29 m2 ?? estacionamiento techado: 2 autos

Superficie 140 m2 ?? estacionamiento banqueta: 8-10 autos y baños hombres: 2 sanitarios, 2 mingitorios, 2 lavamanos

Superficie 568 m2 ?? baño mujeres: 3 sanitarios, 2 lavamanos y 2 baños privados: sanitario y lavamanos

PLANTA BAJA Y PLANTA ALTA ?? Area total rentable: 962 m2

Renta Total: $169,900 MN

Ambas plantas cuentan con: Distribucion adecuada de cubiculos, sala de juntas, pasillos, falso plafon, excelente iluminacion natural y artificial, sistema de Red con Nodos en cada cubiculo para Voz y Datos, tambien cada planta cuenta con: Tinaco, cisterna, y luz trifasica.

Términos y condiciones de la publicación
OFR34762
Guardar en favoritos

Características

962 m²

1500 m²

0 Baño(s) en entrepiso

Ubicación de la propiedad

Rose Lemos

Consultor inmobiliario

5540 ...

5540352154

Solicitar informes

Al ingresar tu email estas aceptando los Términos y Condiciones y has leído el Aviso de Privacidad